Вернуться назад
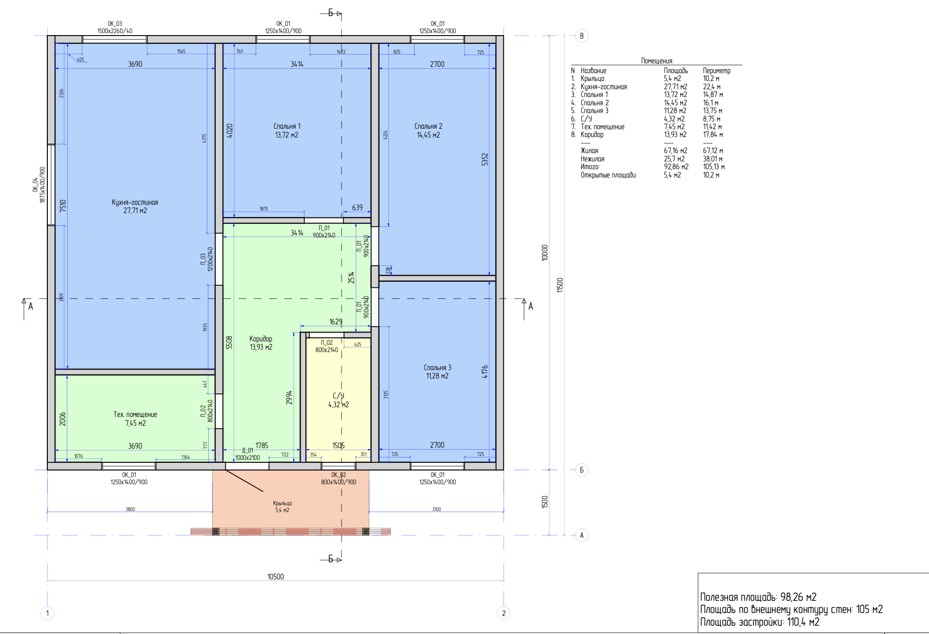
Дом 110 кв. м. ( №36-02-2025)
Уютный дом с 3 спальнями
Связаться