КАРКАСНЫЙ классический дом 130 м²

Уютный дом круглогодичного проживания каркасного домостроения

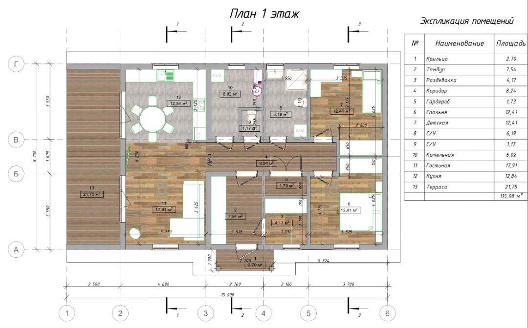
  • 130,5 м² - общая площадь
  • 2 спальни
  • большая кухня - гостиная
  • 2 сан.узла
  • терраса
  • техническое помещение
  • встроенные гардеробные в спальнях и коридоре