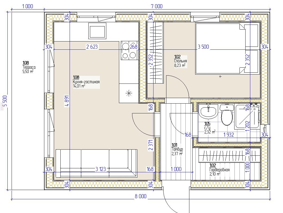
КАРКАСНЫЙ БАРН 45 м²

Уютный дом круглогодичного проживания каркасного домостроения

  • 45 м² - общая площадь
  • 1 спальня
  • кухня - гостиная
  • 1 сан.узел
  • терраса
  • гардеробная