Вернуться назад
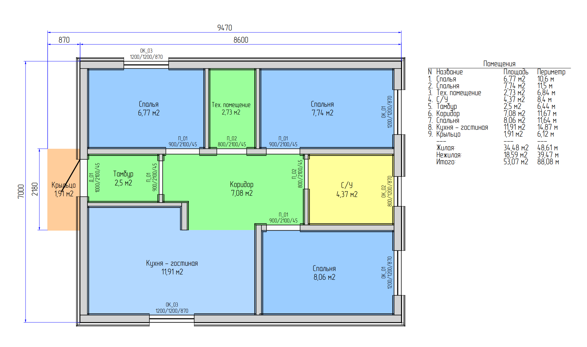
КАРКАСНЫЙ барн 62
м²
Уютный дом круглогодичного проживания каркасного домостроения
62 м² - общая площадь
3 спальни
кухня - гостиная
1 сан.узел
техническое помещение
Связаться