Вернуться назад
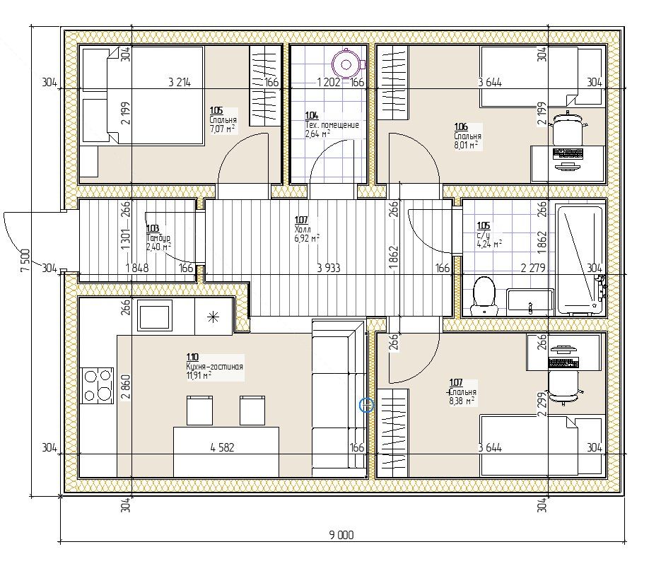
КАРКАСНЫЙ классический дом 67
м²
Уютный дом круглогодичного проживания каркасного домостроения
67,5 м² - общая площадь
3 спальни
кухня - гостиная
1 сан.узел
Связаться