КАРКАСНЫЙ БАРН 80 м²

Уютный дом круглогодичного проживания каркасного домостроения

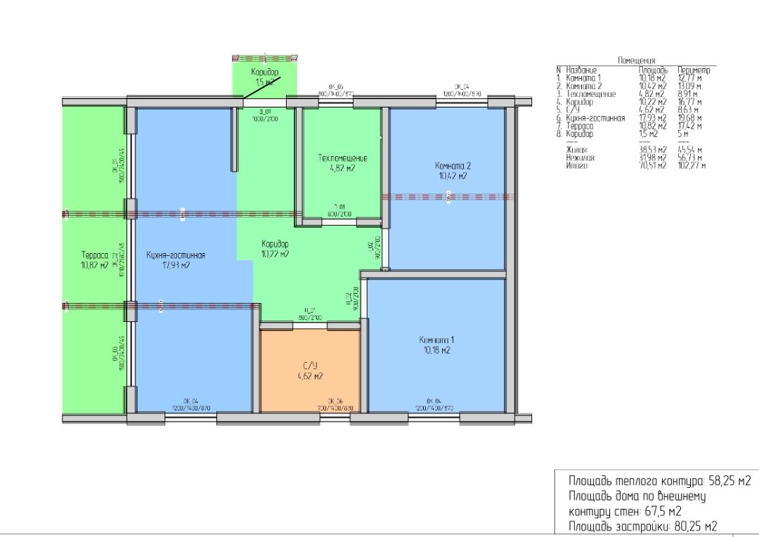
  • 80,25 м² - общая площадь
  • 2 спальни
  • кухня - гостиная
  • 1 сан.узел
  • техническое помещение
  • терраса